Park Astra

  • Hinjewadi, Pune

Description


Check out this residential project for sale by Pride Purple Group in Marunji, Pune. It is currently Under Construction. Pride Park Astra possession is Jun, 2026. The address of Pride Park Astra is Marunji Village, Hinjewadi.

At Pride Park Astra, all residents have easy access to some of the truly desired facilities such as Power Backup. The property has Fire Sprinklers. Come home to Pride Park Astra.

Pride Purple Group is a renowned developer firm.

Marunji is a prime area, with many attractions work and recreational options just a drive away.

Amenities


  • Amphitheater
  • Basketball Court
  • Box Cricket
  • Car Parking
  • Club House
  • Fire Fighting Equipment
  • Flower Gardens
  • Gymnasium
  • Indoor Squash & Badminton Courts
  • Kids Play Area
  • Kids Play Pool With Water Slides
  • Lift
  • Meditation Area
  • Multipurpose Courts
  • Sit Out Area
  • Swimming Pool
  • Tennis Court
  • Vaastu Compliant
  • Visitor Parking

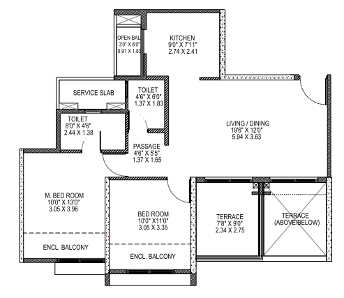
Floor Plans


Rooms Bathroom Builtup Area Carpet Area Rate View
2BHK 2 0 Sqft 663 Sqft Price on request
floor-plans
3BHK 3 0 Sqft 913 Sqft Price on request
floor-plans

Broucher


Title Action
Park Astra Brochure Download

About Hinjewadi


Locality introduction and neighbourhood Hinjewadi Phase 1 is one of the prime commercial and residential zones located in the south-western part of the city of Pimpri-Chinchwad. Superlative social infrastructure and the presence of one of the prominent IT park of Rajiv Gandhi Infotech Park, make Hinjewadi Phase 1 a sought-after destination. Hinjewadi Phase 1 is surrounded by some of the famous localities like Wakad, Baner, Dasar, Pimple Saudagar, and Aundh. Hinjewadi Phase 1 houses various luxurious projects like Vilas Javdekar Developers, Peninsula Land and Clover Realty, Paranjape Builders, Eskay Landmarks, and Future Development Construction Company. Hinjewadi Phase 1 is dominated, multi-storey apartments, and independent houses. Nearby employment hubs Hinjewadi Phase 1 itself is one of the prominent employment hubs which is home to various tech parks like Rajiv Gandhi Infotech Park, Embassy TechZone, Quadron Business Park, Blueridge Tech Park, etc. Hadapsar is 26Km and Kharadi is around 27Km via Hinjawadi - Aundh Road, while Chakan is 29Km away through NH60Source: Magicbricks Research

About Pride Purple


An eminent name in the real estate industry, Pride Purple Group is the result of two industry leaders, Pride Group and Purple Properties, coming together with one common goal called excellence. It was established around two decades ago with an aim to redefine the premium and luxury housing experience in Pune. It strives to develop spectacular structures that enhance the standard of living of the people. The company aims to take its construction initiatives PAN India and beyond and continue redefining the skyline, wherever it goes.